APPARTAMENTO CON GIARDINO E GARAGE
Rif-072
ID Proprietà
125 m2
Superficie
2
Camere da letto
1
Bagno
Descrizione
A Roncegno Terme, in Via Rorei, in posizione defilata e tranquilla, proponiamo in vendita un appartamento al piano terra con giardino.
La zona gode di una splendida vista aperta e di un’ottima esposizione solare.
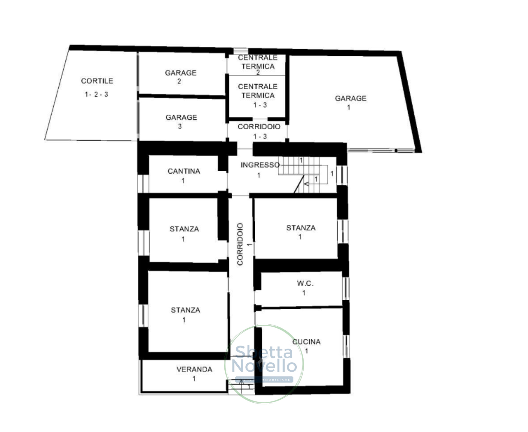
L’abitazione si sviluppa su un unico livello ed è attualmente composta da un’ampia zona giorno con cucina e soggiorno separati, un bagno finestrato e, tramite un corridoio centrale, si accede a due camere matrimoniali di generose dimensioni.
L’appartamento è stato oggetto di una recente e importante ristrutturazione nel 2023, che ha incluso la realizzazione del cappotto termico, l’installazione di una caldaia ibrida (pompa di calore + caldaia) e di un impianto fotovoltaico con batteria di accumulo, garantendo elevata efficienza energetica e comfort abitativo.
Le tubazioni dell’impianto idraulico e l’impianto elettrico risultano da rifare.
La distribuzione interna degli spazi consente inoltre una parziale modifica della disposizione dei locali, con la possibilità di ricavare una terza camera da letto.
Il riscaldamento è a radiatori con caldaia centralizzata.
L’immobile è inserito in un piccolo edificio composto da sole tre unità abitative, privo di spese condominiali.
Completano la proprietà un garage e una cantina.
È inoltre disponibile, con acquisto separato, un terreno agricolo circostante di circa 3.000 mq.
Indirizzo
- Stato: Italia
- Città: Roncegno Terme
- CAP: 38050
- ID Proprietà Rif-072
- Prezzo €195.000
- Categria Proprietà Appartamento
- Status Proprietà Vendita
- Stanze 4
- Camere da letto 2
- Bagni 1
- Superficie 125 m2






